许昌市建安区榆林乡人民政府
乡级
2024-12-02
2024-12-02 15:26
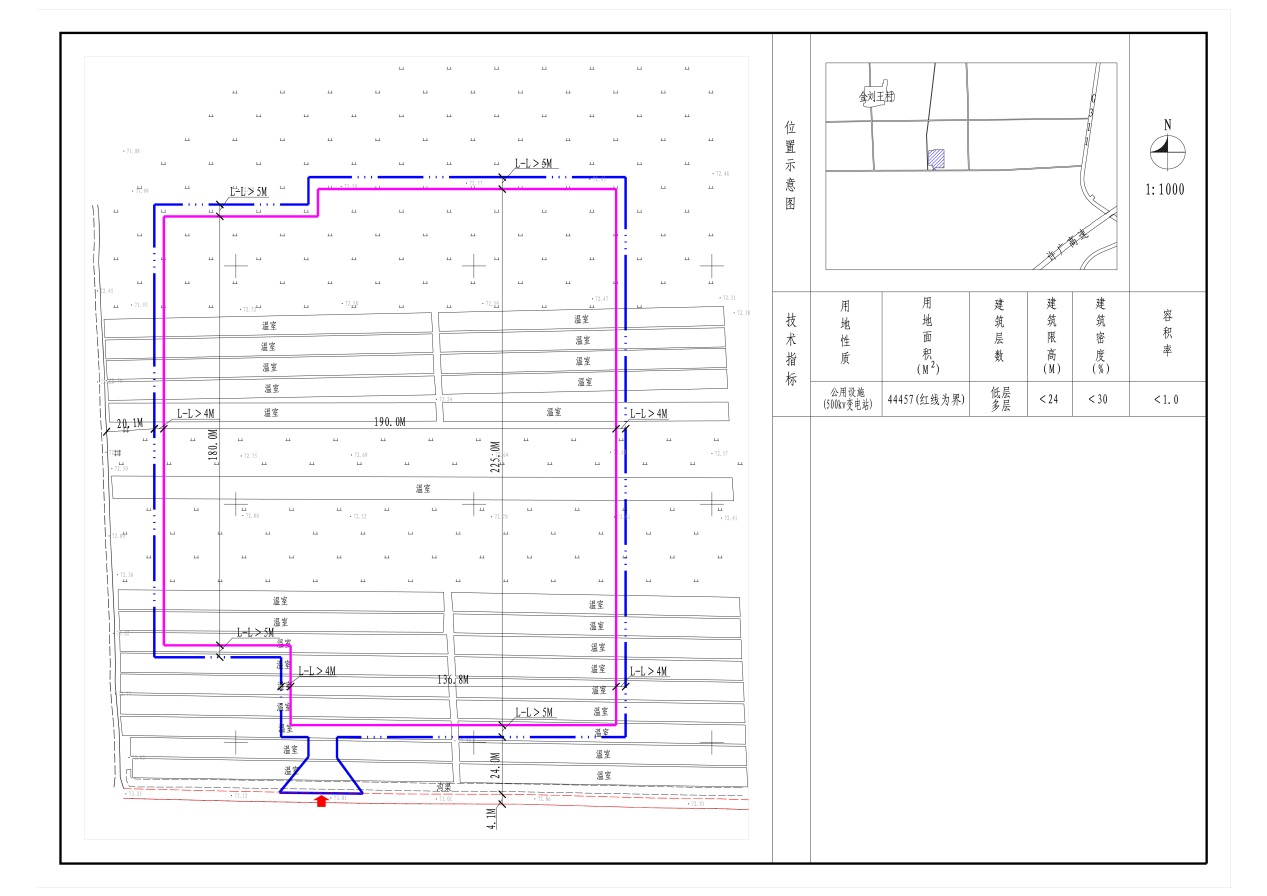
榆林乡金刘王村以南局部地块控制性详细规划
【信息来源:
】
【作者:
】
【信息时间:2024-12-02 15:26 阅读次数:
】【字号
大
中
小
】【
我要打印
】【
关闭
】
该规划地块红线内用地面积:44457平方米(66.7亩);用地性质:公共设施(500kv变电站);建筑限高:<24米;建筑密度:<30%;容积率:<1.0。