公示信息:
|
项目名称 |
许昌市建安区第二高级中学新校区建设项目建设工程规划许可批前公示 |
|
类 型 |
批前公示 |
|
公示类别 |
建设工程(建筑)规划许可公示 |
|
建设单位 |
许昌幸福建安城市投资有限公司 |
|
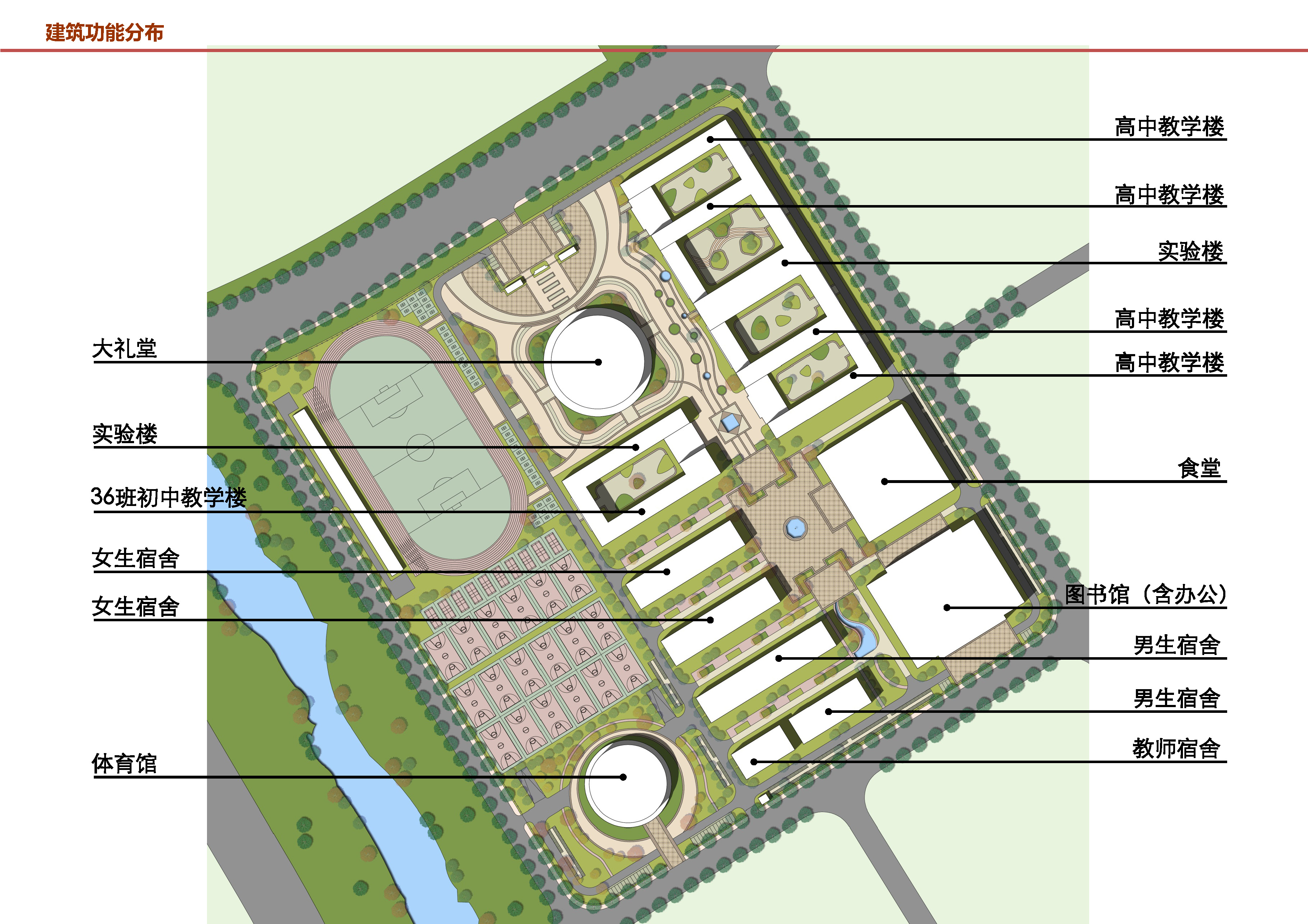
用地位置 |
许昌市建安区规划道路以东、上航路以西、中航路以北、北航路以南 |
|
用地面积 |
145132平方米(绿线) |
|
总建筑面积 |
总建面积151176平方米 |
|
建筑高度 |
≤24米 |
|
建筑层数 |
1F-6F |
|
建筑密度 |
24.6% |
|
容积率 |
0.95 |
|
绿地率 |
35.5 |
|
机动车停车位 |
380 个(建设或预留安装充电位不低于76个) |
|
公示期限 |
7天 |
|
公示日期 |
自公示日起7天 |
|
经办科室 |
许昌市自然资源和规划局建安区分局政务服务股 |
|
咨询电话 |
0374-5151106 |
|
经 办 人 |
孟迅 |
|
附加说明 |
查询详细内容,请出示身份证证明,到我局办理相关手续后查询。依据《城乡规划法》、《行政许可法》、《城乡规划公示公开办法》等有关法律法规、特此公示。如有意见和建议,请在7日内向我局以书面形式提出,相关利害关系人认为影响其合法权益,需要进行听证的,请在公示期内申请听证,逾期不提出意见或申请听证,我局将依法予以行政许可。 |
|
详细内容 |
总平面图、鸟瞰图、透视图、日照分析图、单体图(材质分析图) |



















